本校北棟女廁整修蒐集整修意見以列入後續規劃參考

上一則公告 下一則公告

一般公告 / 張貼者 總務主任 張貼至 2025-12-19止   


張貼日期: 2025-12-16 18:27:50  點閱:13


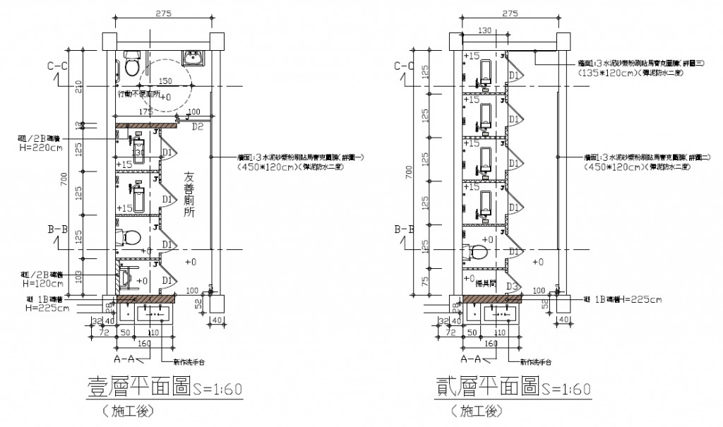
一、本校執行114-116年公立國民中小學老舊廁所整修工程計畫,整修一樓廁所蒐集整修意見以利後續規劃參考。

二、請於114年12月19日前線上填寫意見 https://docs.google.com/forms/d/e/1FAIpQLSciWfJCKmw6yv05vG6cndfBqFPEi_ZVcIZsAz3tTXV7PpsxKA/viewform

三、本案規劃設計概念如附件。


相關照片
近月內熱門公告
  • 2025-12-09 69
      114學年度彰化縣大城鄉大城國民小學充實行政人力代理約用人員甄...
  • 2025-11-24 59
      本校附設幼兒園114學年度第二次特殊教育時薪制學生助理員甄選
  • 2025-11-29 44
      幼兒園114學年度第一學期第14週餐點表
  • 2025-11-26 43
      轉知銓敘部修正「公務員經營商業及兼職情形調查表」及「問答集Q&...
  • 2025-11-21 42
      幼兒園114學年度第一學期第13週餐點表
  • 2025-11-24 41
      有關本縣警察局網路廣播「彰化大佛波麗室」Podcast頻道新增第3集...
  • 2025-12-03 40
      轉知中華祖父母關懷協會辦理「115年(第6屆)全國『好漾爺爺奶奶』...
  • 2025-11-18 39
      檢送「114學年度新住民及子女培力與獎助(勵)學金計畫」1份,請...
  • 2025-12-02 39
      信誼基金會於12/21(日)舉辦【孩子不是故意的!從腦科學解讀過...
  • 2025-12-08 39
      本校附設幼兒園114學年度特殊教育時薪制學生助理員第二次甄選:...
  • 2025-11-26 37
      教育部研編之「學校校長及教職員工違反與性或性別有關之專業倫理...
  • 2025-12-02 37
      檢送彰化縣114年度全縣性國中(小)教師特殊教育研習「特殊教育學...
  • 2025-11-20 36
      有關本縣新住民家庭服務中心辦理「跨越界限:銜接未來」跨國銜轉...
  • 2025-11-27 35
      轉知教育部國民及學前教育署檢送「114學年度高級中等以下學校轉...
  • 2025-11-28 35
      有關教育部國民及學前教育署函轉國防部法律事務司《軍法專刊》徵...
  • 2025-12-05 34
      幼兒園114學年度第一學期第15週餐點表
  • 2025-12-05 32
      台中市象數棋教育協會為推廣品德教育,辦理「第43屆人格心智潛能...
  • 2025-12-08 28
      轉知佛光大學辦理「佛光大學第十屆『生命教育』教案教材研討會-...
  • 2025-12-15 28
      本校附設幼兒園114學年度特殊教育時薪制學生助理員第二次甄選:...
  • 2025-12-12 20
      幼兒園114學年度第一學期第16週餐點表